Датчик присутствия Theben theRonda S360 KNX AP GR (2089551)
Описание функций
- Пассивный ИК датчик присутствия потолочного врезного монтажа
- Круглая зона обнаружения 360°, до Ø 9 м (64 м2)
- Автоматическое управление освещением и ОВК по факторам присутствия и уровню внешней освещенности
- Смешанное измерение освещенности: подходит для всех типов ламп, включая светодиодные
- Два канала для освещения: C1, C2
- Переключение вкл/выкл или диммирование освещения в зависимости от освещенности (постоянное измерение освещенности)
- Функция дежурного освещения
- Режим переключения с регулировкой яркости ламп
- Выбор автоматического или полуавтоматического управления: в «Автоматическом» режиме управление освещением происходит только датчиком. В «Полуавтоматическом» – освещение включается вручную и выключается датчиком (обнаружение отсутствия)
- Значение яркости включения или заданное значение можно установить в люксах с помощью параметров в ETS, объекта связи или с помощью пульта дистанционного управления
- Самообучающееся значение яркости включения или заданное значение
- Функция «Кратковременное присутствия» (уменьшение задержки отключения, если человек зашел и вышел из помещения)
- Ручное включение/отключение по телеграмме или с пульта ДУ
- Два канала для ОВК: C4, C5, настраиваемые индивидуально
- Настраиваемые задержки включения и выключения
- Установка коэффициента коррекции комнаты для правильного измерения освещенности
- Регулируемая чувствительность датчика
- Функция Тест для проверки работы и зоны обнаружения
- Сценарии освещения
- Параллельная работа датчиков в режимах Master/Master или Master/Slave
- Пользовательский пульт дистанционного управления «theSenda S» (опция)
- Пульт сервисных служб theSenda B (опция)
- Пульт сервисных служб theSenda P (опция)
Технические характеристики
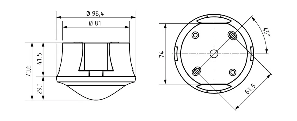
| высота установки | 2 – 4 м |
| Минимальная высота | > 1,7 m |
| Диапазон измерения яркости | 10 – 3000 lx |
| Угол зоны обнаружения | 360 |
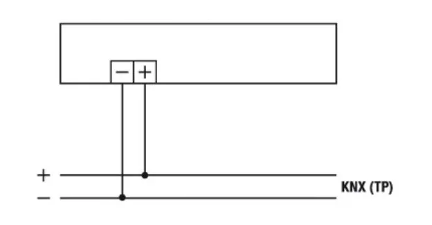
| Тип подключения | KNX шинные клеммы |
| Тип монтажа | Потолочный монтаж |
| Задержка отключения освещения | 30 сек - 60 мин |
| Лампы |
Энергосберегающие лампы,
Люминесцентные лампы, Лампы накаливания/галогенные, LEDs |
| Измерение освещенности | Смешанное измерение освещенности |
| Задержка отключения, выход «Присутствие» | 10 сек - 120 мин |
| Задержка включения выхода Присутствие | 10 сек - 30 мин , не активный |
| Температура окружающей среды | -15°C ... +50°C |
| Зона обнаружения | 50 m² (ø 8 м | 360°) |
| Цвет | Серый |
| Степень защиты | IP 54 |
Диапазон измерений
| Высота установки (А) | Сидящие люди (S) | Диагональ (T) | Навстречу к датчику (R) |
| 2 m | 5 m² | 2,5 m | 38 m² | 7 m | 5 m² | 2,5 m |
| 2,5 m | 7 m² | 3 m | 38 m² | 7 m | 7 m² | 3 m |
| 3 m | 13 m² | 4 m | 50 m² | 8 m | 13 m² | 4 m |
| 3,5 m | 13 m² | 4 m | 50 m² | 8 m | 13 m² | 4 m |
| 4 m | 64 m² | 9 m | 13 m² | 4 m |